Минск, Богдановича ул., д.124, 2-ком. квартира, 11-этаж

Богдановича ул., 124
Советский район (г.Минск)
420 527 руб. (148 000 y.e., 1 692 м 2)
ООО "7 этажей", УНП 192361483, лицензия № 02240/283 от 14.11.2014г., договор на оказание риэлтерских услуг 1058/3 от 2025-07-29

Описание

Рядом зеленая зона - идеальное место для прогулок или пробежек. В шаговой доступности парк Дружбы народов.

Развита инфраструктура: школы, гимназии, детские сады, поликлиники, магазины и торговые центры, аптеки, банки, кафе, бассейн и тренажерный зал, подземный паркинг и другие объекты.

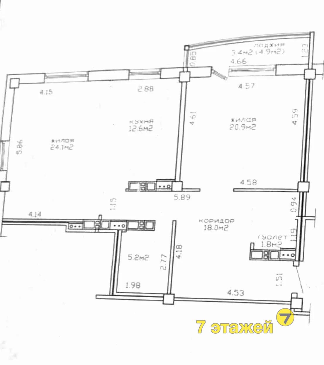
Площадь указана по СНБ, общая 84,1

Дополнительные детали

  • район СОВЕТСКИЙ
  • количество комнат 2
  • Комнат изолированных 2
  • Этаж 11
  • Всего этажей 20
  • Тип здания КАРКАСНО-БЛОЧНЫЙ
  • Общая, м.кв. 87.5
  • Жилая, м.кв. 57.3
  • Санузел СОВМЕЩЕННЫЙ
  • Покрытие пола ПАРКЕТ
  • Балкон/лоджия ЛОДЖИЯ ЗАСТЕКЛЕНА
  • Телефон ЕСТЬ
  • Год постройки 2006
  • Сведения о Чате НЕ ИСПОЛЬЗУЕТ ЧАТЫ
  • Вид из окон: НА УЛИЦУ
  • Закрытая территория ДА
  • Наличие пропускной системы ДА
  • Лифт ДА
  • Мусоропровод НЕТ
  • Парковка ПОДЗЕМНАЯ

Карта

загрузка карты...

Поделиться

Для улучшения работы сайта и его взаимодействия с посетителем мы используем файлы cookie Продолжая работу с сайтом, Вы разрешаете использование cookie-файлов. Подробнее...
Персональные настройки Cookie