Минск, Леонида Беды ул., д.29, 3-ком. квартира, 2-этаж

Леонида Беды ул., 29
Советский район (г.Минск)
663 405 руб. (235 000 y.e., 2 479 м 2)
ООО "7 этажей", УНП 192361483, лицензия № 02240/283 от 14.11.2014г., договор на оказание риэлтерских услуг 278/3 от 2026-04-22

Описание

Продается уютная квартира, в кирпичном доме 2006 года постройки.
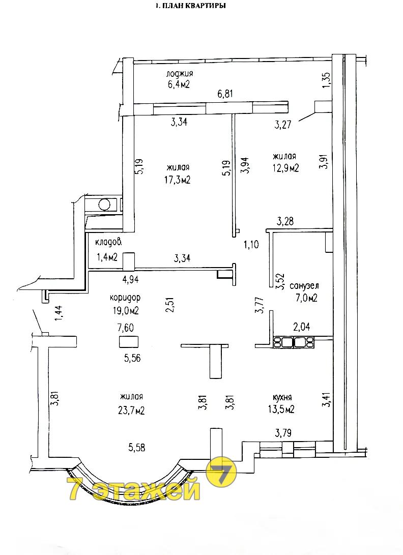
Общая площадь квартиры 101,2 м2 по СНБ, жилая – 55,3. Три раздельные комнаты. Квартира расположена на комфортном 2 этаже. Отлично подойдет для воплощения ваших планов!
Большой просторный зал, изолированные спальные комнаты, просторный санузел оборудованный душевой кабиной, джакузи, боллером.
На кухне располагается встроенный кухонный гарнитур со всей необходимой бытовой техникой. Фартук облицован плиткой. 

Окна квартиры выходят на разные стороны дома. На окнах установлены стеклопакеты из ПВХ. 
На стенах обои. Потолки одно- и двухуровневые окрашены в белоснежный цвет. Напольное покрытие: паркет.
Для хранения личных вещей оборудованы 2 вместительных шкафа-купе и гардеробная 2.8м2.
Одной из особенностей данной квартиры является квартирное освещение:  точечные светильники, подсветка пола, что создает неповторимую атмосферу уюта и комфорта.
Дом с благоустроенной территорией закрытой шлагбаумом. Чистый, аккуратный подъезд, статусные интеллигентные соседи.  Просторный тамбур на 2 квартиры. Видеонаблюдение. Техническое обслуживание и комфортность проживания жильцов обеспечивается ТС.
Неоспоримым преимуществом данного дома, является материал стен – это кирпич, благодаря чему в квартире очень тепло зимой, а в летний зной она сохраняет приятную прохладу, солнце на две стороны квартиры.
Есть еще одна приятная особенность кирпичного дома – это улучшенная шумоизоляция.
Совсем скоро в шаговой доступности появится станция метро «Площадь Бангалор» . До остановки общественного транспорта 2 минуты.
ТЦ «Рига», ТЦ «Европа», супермаркеты «Соседи» и «Корона», аптеки, банки, пиццерии, кафе, несколько детских садиков, школ, гимназий, два центра развития детей и др.

Поможем продать вашу недвижимость для покупки этой.
Работаем с различными видами кредитования:
- Система строительных сбережений от Беларусбанка;
-Ипотечное кредитование и все виды кредитования на покупку недвижимости.
А также:  
-Подыщем выгодный для Вас банк;
-Поможем продать вашу недвижимость для покупки этой!

Дополнительные детали

  • район СОВЕТСКИЙ
  • количество комнат 3
  • Комнат изолированных 3
  • Этаж 2
  • Всего этажей 9
  • Тип здания КИРПИЧНЫЙ
  • Общая, м.кв. 94.8
  • Жилая, м.кв. 55,3
  • Кухня, м.кв. 13,5
  • Санузел СОВМЕЩЕННЫЙ
  • Покрытие пола ПАРКЕТ
  • Балкон/лоджия ЛОДЖИЯ ЗАСТЕКЛЕНА
  • Телефон ЕСТЬ
  • Год постройки 2006
  • Сведения о Чате TELEGRAMM
  • Вид из окон: НЕСКОЛЬКО СТОРОН
  • Закрытая территория ДА
  • Лифт ДА
  • Парковка УЛИЧНАЯ

Карта

загрузка карты...

Поделиться

Для улучшения работы сайта и его взаимодействия с посетителем мы используем файлы cookie Продолжая работу с сайтом, Вы разрешаете использование cookie-файлов. Подробнее...
Персональные настройки Cookie